با توجه به کسب کلیه حد نصاب های لازم در بخش های مختلف شامل ارزیابی کیفی ، ارزیابی فنی و پیشنهاد مالی، شرکت مونولیت برنده مناقصه احداث ساختمان عملیاتی منطقه شش عملیات انتقال گاز به کارفرمایی شرکت مهندسی و توسعه گاز ایران گردید .
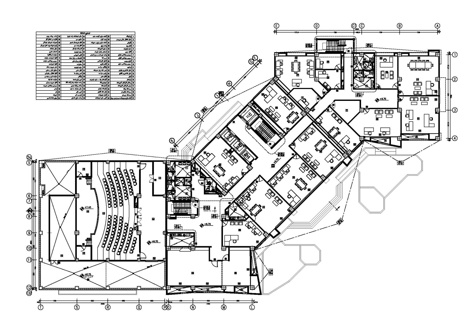
پروژه ساختمان اداره مرکزی منطقه شش عملیات انتقال گاز در زمینی به مساحتی حدود 3 هکتار مجاور مرکز بهره برداری خطوط لوله سرخون واقع در شهر بندر عباس احداث می گردد. ساختمان اداری شامل همکف و پنج طبقه بر روی همکف به مساحت کل 9990 متر مربع و محوطه سازی حدود 2500 متر مربع بوده و پارکینگ بر اساس مصوبه شهرداری تأمین خواهد شد. مسیر دسترسی2000 متر در محور بندرعباس – میناب می باشد.


بدون دیدگاه